詳細說明
ZDLN電動雙座調節閥采用雙導向結構,配用3601L系列電子式直行程電動執行機構.電子式電動雙座調節閥具有結構緊湊、重量輕、動作靈敏、閥容量大、流量特性精確、拆裝方便等優點。
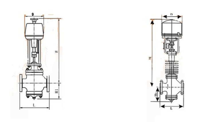
一、ZDLN電子式電動雙座調節閥概述
ZDLN電動雙座調節閥是由直行程電子式電動執行機構和直通雙導向式單座、雙座閥組成。具有結構緊湊、動作靈敏、壓降損失小、閥容量大、流量特性精確,直接接受調節儀表輸入的(4-20mA DC 0-10mA DC或1-5V DC)等控制信號及單相電源即可控制運轉,實現對工藝管路流體介質的自動調節控制,廣泛應用于精確控氣體、液體、蒸汽等介質的工藝參數如壓力、流量、溫度、液位等參數保持在給定值.
二、ZDLN電動雙座調節閥特點
1.ZDLN型電子式電動雙座調節閥是自動化控制系統中儀表的執行單元,以AC220V電源電壓作動力,接受來自DCS、PLC系統或調節儀表、操作器等輸入的(4-20mA、0-10mA或1-5VDC)電流信號或電壓信號,即可控制運轉,采用機電一體化結構,具有機內伺服操作和開度信號位置反饋、位置指示、手動操作等功能,功能強、性能可靠、連線簡單、調節精度高,以直行程輸出的推力改變閥門開度位移,達到對流體介質的工藝參數精確調節控制。
2.ZDLN型電子式雙座調節閥按作用模式可分;正作用:電閉式-常開型(當電信號增大時閥位向下位移),《B型》、反作用:電開式-常閉型(當電信號增大時閥位向上位移),《K型》
3.ZDLN型電子式電動雙座調節閥為直通雙座鑄造球形閥,雙座柱塞型閥芯,適用于壓差大、流量大且不是很清潔的介質和泄漏要求不嚴格的場合
4.ZDLN型電動雙座調節閥為直通低流阻雙座上、下雙導向式結構,閥芯在位移過程中穩定可靠,雙座閥閥體內有兩個閥芯閥座組成,流體介質通過上下閥芯閥座流出,具有流量大、允許壓差大、不平衡力小,是一種平衡式結構雙座閥。
5..通過改變閥芯形狀的設計;不同的閥芯形狀會得到不同流量特性值:等百分比(對數)性、直線特性。
本系列產品廣泛應用于化工、石油、冶金、電站、輕紡、造紙和制藥等工業生產過程的自動化調節和遠程控制。有標準型、波紋管密封型、夾套保溫型等品種。產品壓力等級有PN1.6 4.0 6.4MPa;公稱通徑DN20~300mm;適用流體溫度有-100~+500℃;按溫度高低配用不同閥蓋可分常溫型、高溫型和低溫型3810L型或PSL型直行程全電子式電動執行機構是單雙座調節閥的驅動裝置,采用一體化結構設計,它以AC220V電源電壓作動力,直接接受統一標準信號(4-20mA、0-10mA或1-5VDC、0-10VDC),將此轉變成與輸入信號相對應的位移,以直線性往復運動,改變閥芯的開度,因此一定的輸入信號對應一定的位置開度,實現比例動作。是一種高精度、高性能、高可靠性類產品。
三、電動雙座調節閥 主要技術參數
四、電動雙座調節閥 執行機構主要技術參數
五、電動雙座調節閥 性能指標
六、電動雙座調節閥 允許壓差
七、電動雙座調節閥 電氣接線說明
| 20 | 25 | 32 | 40 | 50 | 65 | 80 | 100 | 125 | 150 | 200 | 250 | 300 | 400 | |||||||||||||||||||||||||||||||||||||||||||||||||||||||||||||||||||||||||||||||||||||||||||||||||||||||||||||||||||||||||||||||||||||||||||||||||||||||||||||||||||||||||||||||||||||||||||||||||||||||||||||||||||||||||||||||||||||||||||||||||||||||||||||||||||||||||||||||||||||||||

九、ZDLN電動雙座調節閥訂貨須知
①電動雙座調節閥產品名稱與參數②電動雙座調節閥口徑的選擇③電動雙座調節閥流量特性選擇④電動雙座調節閥調節速度選擇⑤電動雙座調節閥作用方式選擇⑥電動雙座調節閥泄漏量應滿足工藝要求⑦電動雙座調節閥壓差(包括正常工作壓差,閥關閉時壓差)⑧電動雙座調節閥防堵性⑨電動雙座調節閥耐蝕性等以及是否帶附件以便我們的為您正確選型。




相關新聞
相關產品
氣動薄膜耐高溫調節閥
自力式溫度調節閥
氣動薄膜單座調節閥
電動高性能蝶閥
氣動薄膜襯氟單座閥 流量調節閥
電動O型切斷球閥ZDRO